
380㎡新中式 | 庭院人家,山水幽夢

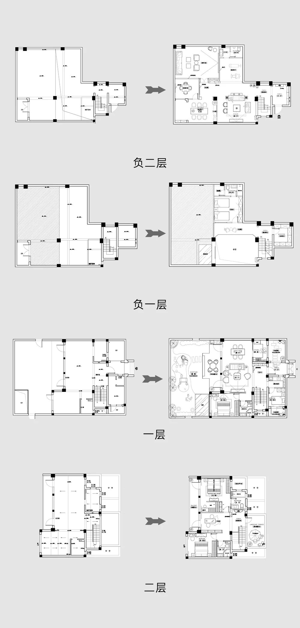
| 項目信息 地址:春風燕語 城市:中國 杭州 戶型:中式合院 面積:380㎡ 風格:新中式 設計施工:浙江南鴻裝飾 作品前言 排屋大宅這種多層的空間,注定能夠賦予生活超越一般的可能。奢闊大氣的環境,滿足個性多元的生活需求,創造一方純粹私享空間。 (外景) (內景) 本案地下的活動空間相較地上會更大,設計師通過改造天井,讓地下空間的利用更為合理高效,安裝的電動天窗讓陽光可以直照入地下2層,滿足各樣生活場景的采光需求。 倚欄臨窗,觀星賞月,流年風雅。設計結合了傳統中式的典雅和現代風格的明練,為業主打造出充滿文化意境的豐韻居所,移步易景,虛實相生。 戶型設計 實景呈現 01 玄關 門廳使用木作提供收納鞋物的空間,增強功能性,與內廳之間則是以中式經典的格柵搭配意象造景作為隔斷,格局貫通的同時又有了合理的分隔規劃。 02 客廳 居室的硬裝風格較為明練簡潔,軟裝制式則遵循中式傳統,形色克制、莊重,厚重的深色木材鋪敘深沉的文化底蘊,空間既具有東方韻味,又能兼顧現代生活的實用性。 對窗而坐,屋外的庭院景致即映入眼簾,春夏秋冬的朝夕之變,端坐于室內便能清楚感知,恍惚間仿佛穿梭了時空,沉浸入風雅幽夢。 03 餐廳 餐廳與客廳連通,整體格局頗為大氣。對稱的布局還原中式傳統,古典色彩的莊重搭配山水畫的靈巧,不同載體不同氣質的中式元素糅合為一,圍塑出古色古香的就餐環境。 04 樓梯 借助燈光展現的懸浮感樓梯設計,時尚的現代筆觸加持,傾力呈現著生動美觀的人居生活。 05 臥室 現代高級灰的色彩與硬包制式,加上獨特的吊頂設計,共同裝飾著這間素雅臥室的靈韻,中式窗扇引景入室,詩意日常就此與心相融。 飛檐青瓦下的現代起居生活,光是簡單的描繪便能讓人心生無限的向往。室內用簡約的背景墻造型與配色突出靜謐之感,并營造恬淡舒展的家庭氛圍。 06 地下休閑區 挑高的地下室空間,華麗的燈飾垂懸而下,展現著非凡的氣勢。光亮的大理石墻面映襯室內的通透氣質,鏤空屏風立于會客區與品茶區之間,錯落有致的布局增添了層次感與藝術感。 品茶區位于天窗下方,采光豐沛,視野舒展開闊,典雅禪意正隨著茶香而慢慢飄散~























免費
免費申請戶型規劃
專屬設計師免費1對1全程服務
已經有3781人申請
24小時免費咨詢電話
400-8800-618
你家預算
108080元