
金都華庭130㎡ | 素履以往:在雅凈之所中安放自我

本案為130方現代侘寂風格的作品。
居室涂抹柔白的藝術漆,搭配溫潤木作與實木家具,在素樸留白間注入自然禪意,讓居住變得寧靜舒緩。
外在極簡,內在豐盈。材料本身的肌理與溫度,成為了空間情感的延伸,也讓這個家得以兼具文化滋養與當代生活的舒適性。


Living Room
客廳


墻頂暖白藝術漆與地面淺色啞光大磚通鋪,共同形成素凈淡雅的基底,將整個空間包裹為通透一體的容器。懸浮造型的電視背景墻,與沙發背景疊加的體塊互為呼應,加上圓潤的轉角處理,進一步柔化了空間輪廓。

室內開放的格局令視野向走廊端無束縛延伸,通透感被放大至每一寸肌理。頂面無主燈設計勾勒點、線、面的分明層次,明與暗相互滲透,形成柔和的張力,讓空間在靜謐中流動出無聲的節奏。


白色弧形主沙發搭配侘寂風經典藤編茶幾,以及墨綠色的螃蟹椅,打造一方質感柔和、高級的休閑與會客場域。陽光透過純潔夢幻簾,輕輕蕩開幸福的光暈,讓心不由自主安定下來。



立面以木材作不完全式包裹,營造自然雅韻,亦賦予空間呼吸感。隱形儲物設計將日常痕跡藏于無形,外觀線條保持整潔統一,在裝飾與隱匿之間取得的平衡,貼合了當代生活對于“詩意棲居”的期盼。
Dining Room
餐廳


餐廳質地同樣輕凈通透,延伸了空間的視覺尺度。立面嵌入無把手儲物柜,線條平整;餐桌銜接島臺,強化功能上的互動性,也在極簡的造型中,賦予場景以連續的現代氣質。
Kitchen
廚房

淺咖色系櫥柜自然可親,廚房整體狹長而開放的布局,利用了與餐廳的天然距離,形成功能上的柔性分隔,既維持了區域間的高頻互動,也在一定程度上緩解了油煙彌漫的困擾,兼顧實用和美感。
Master Room
主臥

簡白藝術漆繼續鋪敘著墻頂,埡口彎出優雅的弧度,傳遞素樸暖意。陽光自窗畔輕輕灑入,投下寧靜與生機。

木系與藤編元素交織在一起,為空間注入充盈的自然呼吸感。背景墻留白,并以簡潔又具有藝術感的造型勾勒靈動的立體光影,令這方安靜的睡眠地,可以時刻與生活之美相擁。

主臥與主衛之間的隔斷選用玻璃材質,使光能自由穿透,從而化解暗衛的采光難題,同步在視覺上延伸臥室的整體尺度。



兩側不對稱的燈飾細致點綴空間,溫潤木質碰撞冷冽石材,看似隨意的角落,都藏著精心布置的設計美學,讓日常起居能浸潤在儀式感之中。
Spare Room
次臥

次臥空間簡約明練,書桌布置在床頭一側,為閱讀、辦公留出專屬的角落。陽臺以玻璃移門與室內空間相隔,開合之間,光線自由流動,居室也有了溫度與呼吸的節奏。



半墻木飾面塑造簡約的層次與輕柔的穩定感,床頭柜自衣柜延伸而出,結構銜接流暢自然。陽臺的落地窗將光與景引入,只需一把休閑椅,一方獨處的理想角落便順勢而成。
Bathroom
衛生間



主次衛的墻地面皆通鋪微水泥肌理瓷磚,放大空間感的同時更耐臟好打理。簡單清晰的功能劃分,在有限面積內實現了高效布局,營造簡潔舒適的洗沐環境。
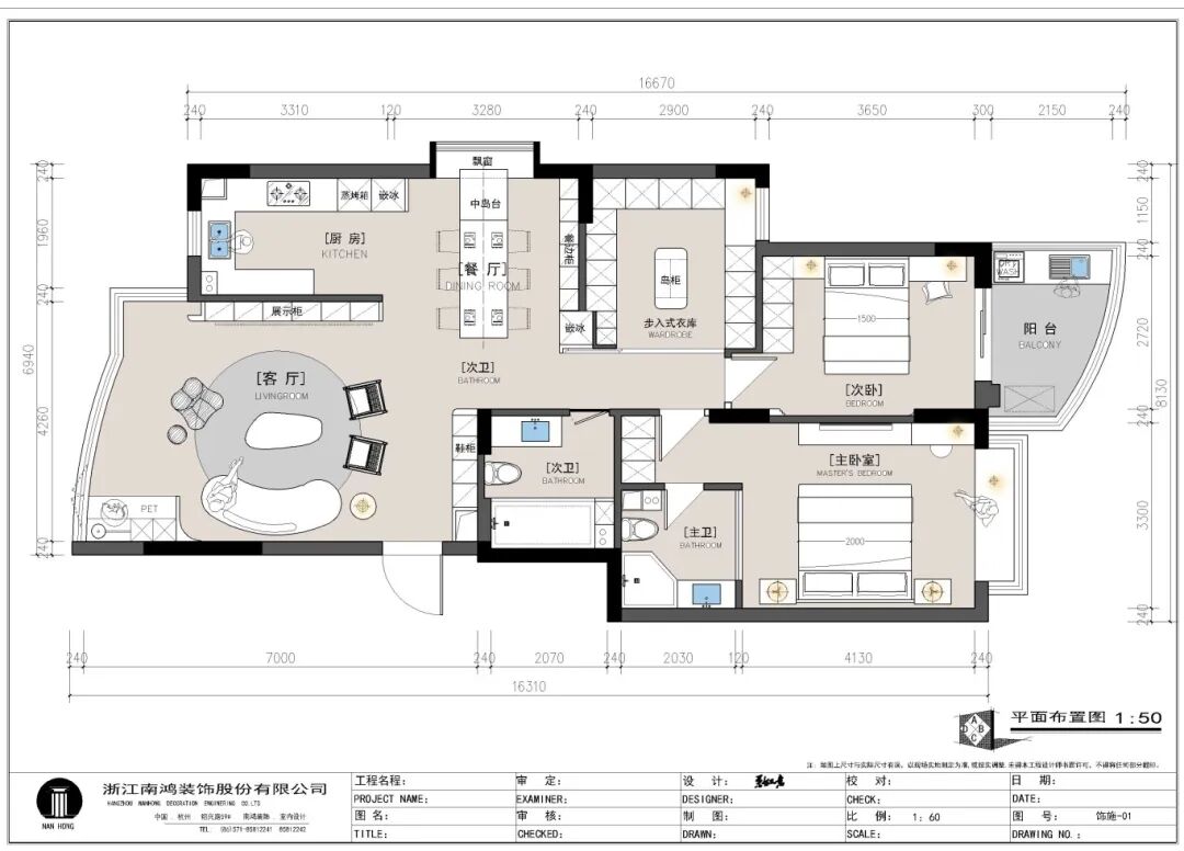
項目信息
項目名稱:金都華庭
設計風格:現代侘寂
項目類型:三室兩廳
項目地點:中國 · 杭州
項目面積:130㎡
項目服務:設計·施工·硬裝·軟裝 全案設計
設計單位:浙江南鴻裝飾
施工單位:浙江南鴻裝飾
已經是最后一篇了
免費
免費申請戶型規劃
專屬設計師免費1對1全程服務
已經有3781人申請
24小時免費咨詢電話
400-8800-618
你家預算
108080元