
錢江御府170㎡現代風 | 大橫廳開放布局,無主燈設計彰顯極致簡約

本案為170㎡現代風格設計,業主為一對事業有成的夫婦,家里還有一雙兒女和兩個老人,對居住環境的品質有著較高要求,希望設計師能打造出一個簡約低調、大氣美觀的生活空間。
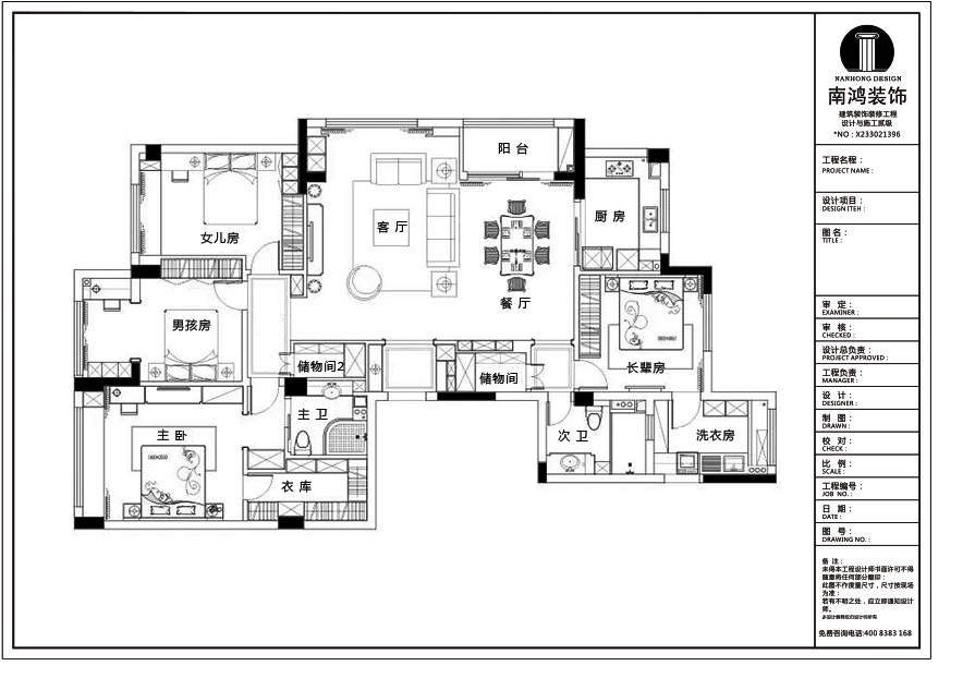
戶 型 圖
存在問題:
原戶型進門就是大開間,沒有門廳;室內儲物空間較少。

解決方式:
· 入戶增設門廳;
· 公共區域設計了兩個儲藏間,并對主臥內的主衛進行改造,把原有的走入式衣柜空間擴大;
· 把原有過度浪費的空間都充分利用了起來,半室外的陽臺、設備陽臺等都引入室內空間。
客 廳

客廳為橫廳格局,納入其中一個陽臺,視野開闊,采光充足,減少純過道空間,提高戶型使用率。

干凈利落的空間線條和家具線條,還原最簡單的生活狀態,過道處波紋質感的KD板墻巧妙地延伸視覺。


整體以高級灰為基調,選用低飽和度色系的軟裝搭配,沉淀出簡約時尚的家居氛圍??筷柵_處擺放芥末黃單人沙發,提亮空間。

頂面是無主燈設計,選用當下流行的磁吸軌道燈,在極簡手法上更淋漓盡致。
餐 廳

餐廳選用大理石餐桌和灰色餐椅,端莊大氣,餐桌旁的黑框清玻移門自然地劃分餐廳與廚房的空間。

廚 房

廚房,白凈的基底下,灰藍色櫥柜顯得非常清爽,簡單卻鮮明的色彩搭配,帶來潔凈的視覺效果。
臥 室

主臥以木色和暖棕色調為主,床背景硬包與時尚壁燈的搭配彰顯空間干練的氣質。


暖暖的木色,讓人能充分感受到溫和舒適的愜意生活~
兒 童 房

女孩房,粉色的墻漆裝飾干凈簡單,散發出甜蜜輕柔的少女氣息。

男孩房,選用男生偏愛的藍色系打造,同客廳一樣包進了陽臺,劃分出學習區的同時能更好地引入自然光線。

衣柜是現場定制的,精細的定制工藝和金屬門把手輕松提升空間質感。
衛 生 間

衛生間延續簡潔基調,嵌入式臺盆顏值頗高,白色石紋瓷磚墻地一體,墻上還設計了壁龕增加儲物。
| 地址:錢江御府
| 面積:170㎡
| 風格:現代
| 設計施工:浙江南鴻裝飾
下一篇:裝修陽臺是一定要注意這些!
免費
免費申請戶型規劃
專屬設計師免費1對1全程服務
已經有3781人申請
24小時免費咨詢電話
400-8800-618
你家預算
108080元