
十二月設計師大會 | 精彩的收官PK賽!
不平凡的2020年,
即將走向結尾。
小鴻對著日歷瞅了半天,
這不元旦假期要到了嘛~

在那之前,
大家雙十二都想好買啥了嗎?
咱們南鴻可是準備了年度超級盛典,
年前定裝修的朋友,
千萬不可錯過啦!

咳咳,言歸正傳,
昨日下午召開了12月設計師大會,
也算是本年度的收官PK賽。
“精彩”兩個字,
小鴻都說倦了

01
設計師PK賽
★MVP風采
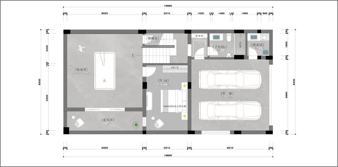
本次大會MVP,是設計一部孟煒江老師帶來的一套非常經典的排屋作品——大華西溪風情。

- 戶型圖 -




雖然有著540方的超大空間,但設計師依然謹慎地衡量著每一個家具、每一個飾品的尺寸大小和擺放位置,最后呈現的效果,無論是家具還是配飾,均以其優雅的姿態、平和而富有內涵的氣韻,描繪出屋主樂觀平實的生活理念。
一套十分大氣的美式輕奢案例作品,大家可以點擊下圖了解詳情哦▼

??其他精彩作品
設計四部——玖玖國際財富中心

房屋位于余杭區,是一套面積90方左右的復式公寓,業主為一家三口,風格定位在現代簡約。

▲SU模型展示
二樓是女兒的開放式臥室空間,樓梯本身做了懸浮設計,效果超級美觀!
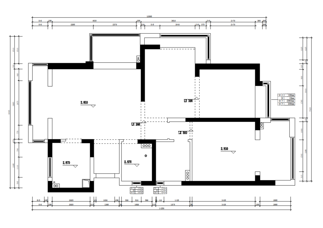
濱江分部——江南學府

本案戶型為104方,三房兩衛的方正結構,無暗衛暗室,業主需求新穎的設計與當下比較流行的智能家居。
- 戶型圖 -

- 實景圖 -



▲暖棕色的家居,沉穩中釋放著韻味;最精簡的家具,讓設計回歸生活本真
臨平分部——胡姬花園

胡姬花園的業主為一家四口,希望新家的功能可以盡可能完善。設計師在公共區域沿墻設置收納柜,滿足了全家人的收納需求,并利用相同元素延伸的設計,保證了空間的開闊感。
- 戶型圖 -

- 實景圖 -

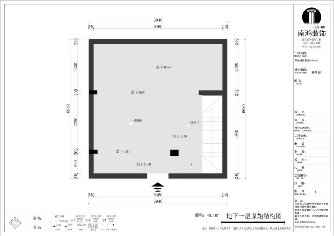
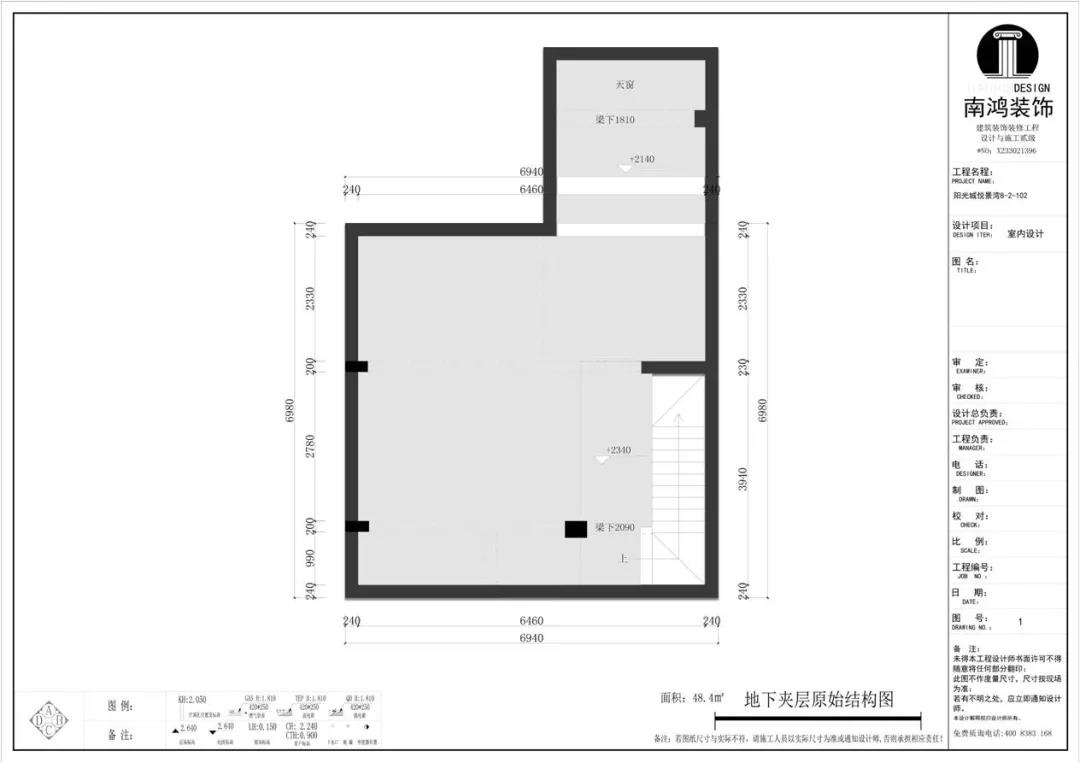
富陽分部——陽光城

本案為局改項目,業主打算裝修自家的地下室,由于本人十分看重施工品質,所以自然而然地找到了在工程質量上一向有口皆碑的南鴻。
- 戶型圖 -


- 施工圖 -

城西分部——錢江御府

本案為170方現代風格的作品,業主是一對事業有成的夫婦,家里還有一雙兒女和兩個老人,希望設計師能打造出一個簡約低調、大氣美觀的生活空間。
戳戳下圖回顧一下吧!

02
產品知識學習

會議上,定制部的祝總還專程為在座的設計師們講解了我們南鴻富拉尼定制板材的相關知識,其中重點提到了目前的主流產品愛格板,以幫助設計師們能更好地掌握南鴻的全案產品體系。
03
頒獎時刻

▲李總為業績突出與上月優勝的設計師頒獎
會議的結尾,李總發表講話,重點闡述了設計交付與業績提升的問題,這二者均離不開設計師對各類產品深度的了解與把控。

李總強調,設計師應不斷拓寬自己的產品知識,積極參與并把控產品選配,提供給客戶更優質的到店體驗,方能在業績上取得一個新的突破。
免費
免費申請戶型規劃
專屬設計師免費1對1全程服務
已經有3781人申請
24小時免費咨詢電話
400-8800-618
你家預算
108080元