
【江灣城】光與景的造夢之所,包容下所有的個性與美好!

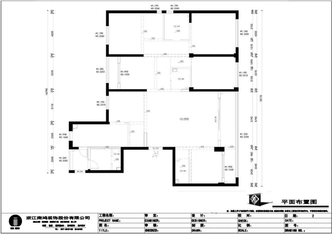
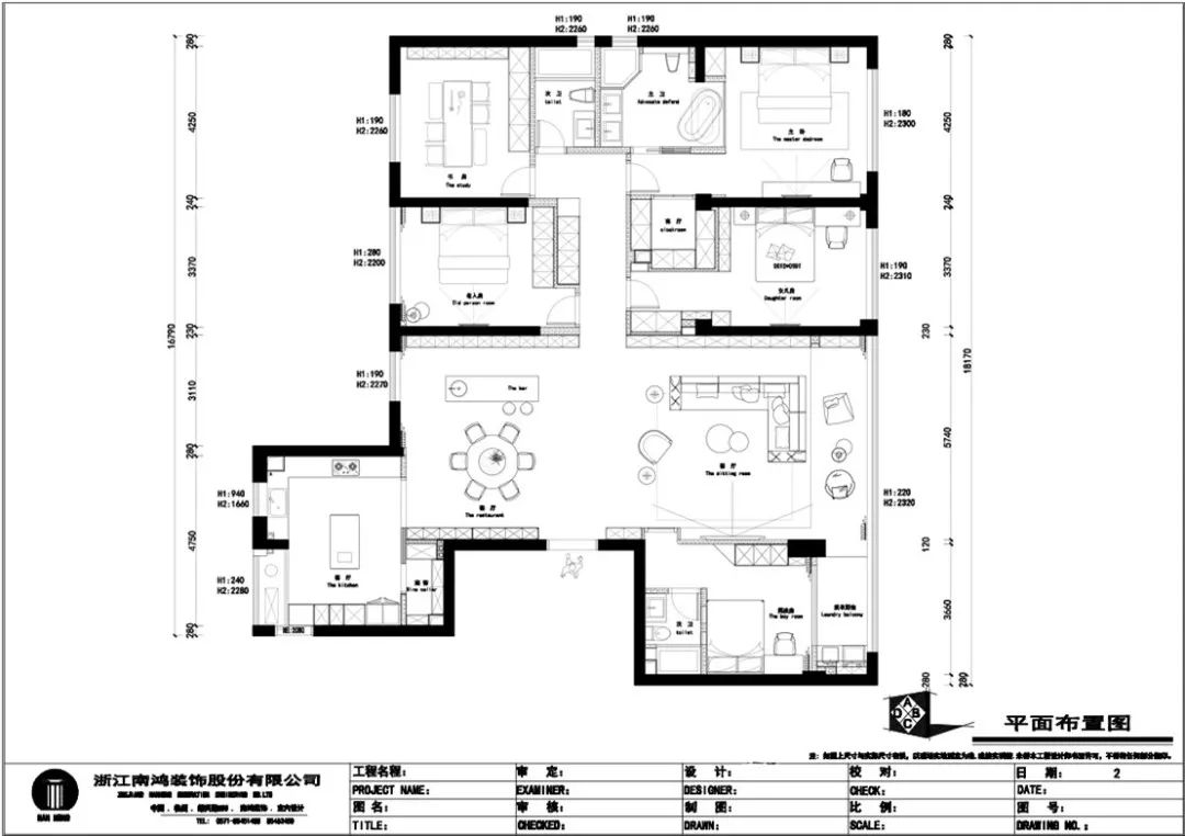
地址:江灣城 城市:中國 寧波 戶型:五室兩廳 面積:260㎡ 風格:現代簡約 設計施工:浙江南鴻裝飾 本案位于寧波奉化江邊,是一套改善型住房。染色木飾面、淺灰烤漆板以及深色石材等不同材質混搭,呈現層次分明疊加遞進的空間感。設計師規劃了足夠多的儲物區域,這樣即使是多人居住也不會感到拘束擁擠。個性的空間設計,精致的氛圍打光,虛實交錯間,給人全然的放松和休閑。 #戶型改造分析 ▲原始戶型圖 餐廳與客廳的比例差距較大,進門左側遮擋視線,顯得空間不夠通透;保姆房、設備平臺、衛生間幾塊區域沒有得到充分利用;戶型中心的暗衛,不利于動線的規劃,客戶對風水也有忌諱。 ▲平面設計圖 ①打通進門的儲藏間與餐廳,設計了西廚吧臺,餐廳與客廳共同形成一個大的開放式空間。玄關與過道可以延伸視線,給人更多的遐想。 ②廚房往西拓展,中間設計島臺,增加下廚時的互動。消防門隱藏在高柜內,生命通道必須保留。廚房矩形規劃完成后,對剩余空間也進行利用,做了一個酒窖來滿足客戶收藏酒水的喜好。 ③公衛移到了靠東有窗戶的位置,增加采光和通風。其中一個衛生間給主臥做衣帽間使用,增加主臥的儲物區域。 玄關 沉寂的木色將親切的自然調性慢慢舒展開來,裝飾舍棄復雜,只以簡練但精巧的設計語言,在這個入戶位置點綴出家的暖意。 客廳 淺淡的素色,馨暖的無主燈設計,自然的紋路,加上適當的石材搭配,共同組建出一個包容感強、舒適愜意的會客場所。 客廳將簡約的氣質融入到相對板正的家具形態之中,布藝的多人位沙發組合拼接式茶幾,自成一體。沙發背景做儲物與展示柜,電視背景墻選擇了巖板材質,包入客廳的陽臺則設計黑色地臺做出休閑景觀區,與背景墻部分銜接,讓視覺得到延展。 客餐廳之間沒有明顯區隔,通透的開放式布局讓家庭公共活動區域得到充分拓展。 餐廳 簡約的圓桌餐廳與精致的西廚布置,塑造人間煙火與歲月時光交融的藝術美,開放式行為模式也為家人間的互動創造更多可能。 廚房 廚房選用時尚潮流的克萊因藍,顯得非常清爽有活力。L型設計讓下廚動線通暢,洗菜、切菜、烹炒路徑合理,空間能夠實現最大化利用。 通頂柜融入冰箱和蒸烤箱,讓立面簡潔。廚房還連接著專門的酒窖空間,酒窖門與廚房移門共用一個門套,視覺連貫性非常好。 過道 空間的每一處轉角都能捕捉到細膩的現代化細節處理。明與暗,光與影,線與面,都很好地通過從頂彎折拉伸至地的燈帶有機結合了起來,將視覺與行走路線在不知不覺中引導至內部的私密空間,并帶來充分的美學效果。 臥室 臥室同樣鋪優雅的魚骨拼地板,沉穩的色調讓溫和與平靜成為空間中可被感知的內容。墻面做出護墻板和木格柵的造型,增添許多層次。內臥與衛浴之間加入通透的玻璃隔斷,幫助導引室內光線。 男孩房選擇純凈的天空藍作為主色系,與衛浴之間加入了長虹玻璃,菱形造型增添活力俏皮的感受。 女孩房考慮到孩子的年齡則是一個更加“卡哇伊”的空間,圓潤家具造型可以避免日常磕碰,粉色的墻粉色的柜面,還有軟萌的“兔子床”,空間足夠地靈動有趣,讓孩子能盡情漫游在她的童話王國~ 書房 染色黑胡桃木材質搭建起這個深色有氣質的書房,書柜內的隱形燈光起到調節氣氛的作用。 衛生間 住宅氛圍營造關鍵的是要在美學和心理學的基礎上,進行顏色、光線的搭配和室內質感的塑造。衛浴空間以深灰的瓷磚構建,搭配精到的燈光設計,呈現出神秘而優雅的氣質。























免費
免費申請戶型規劃
專屬設計師免費1對1全程服務
已經有3781人申請
24小時免費咨詢電話
400-8800-618
你家預算
108080元