
新作 | 光與夜的協奏曲
光與夜的協奏
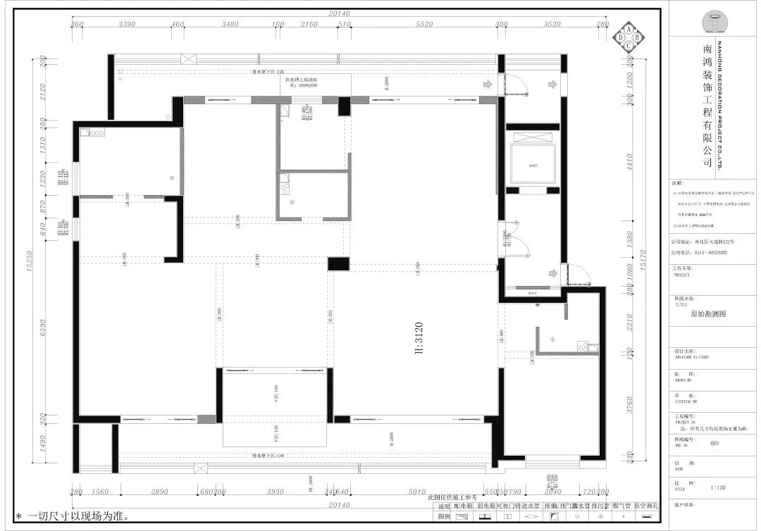
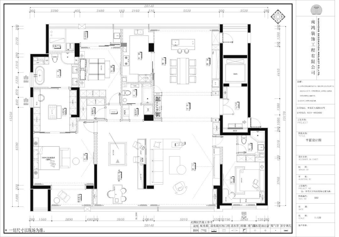
FOREWORD 作品前言 - 本案來自一對年輕夫妻的新居大平層設計,男女主人從國外留學歸來,對家的品質感有著極高的要求,同時也希望帶更多的穩重感,所以整體墻面用材在原木色的基礎上結合了大量深沉神秘的黑檀木,溫潤性與神秘感相碰撞,顯現別致的和諧與獨特的張力。 素色主調衍生純粹且過目難忘的意境 空間如謙謙君子一般溫潤如玉 置身其間 漫步隨行 氣定神閑 隨心而動 戶型改造 - ABOUT THE HOUSE 【原始戶型圖】 優點:空間區域劃分清晰,層次分明,可外擴面積較多。 缺點:入戶玄關較長,廚房空間不大,次衛是暗衛等。 【平面方案圖】 設計說明: ①餐廳利用原來的北陽臺,增加了西廚功能; ②增加廚房面積,讓原有廚房擴大一倍,中和大平層的空間感; ③改變過道位置,增大公衛面積,并做干濕分離; ④客廳空間整體向南移動,敲除原有陽臺墻體,讓客廳視野更加開闊,電視背景跟隱形次臥門共同形成統一的電視墻; ⑤北客臥利用過道空間,增加一個收納間; ⑥主臥縮小睡眠區,擴大衣帽間面積。 玄關 - HALLWAY 推開入戶門,即見中國式的玄關面目。深長廊道以木皮界定區域,整一個開放式空間,南為客廳,中為端景,北為餐廳,用微建筑的概念創造出一條私密的軸線,將空間該有的機能,都縝密有序地收了進來。 客廳 - LIVING ROOM 開放式格局,將不同功能區連接,開闊而舒展,突顯大平層的奢華氣質。頂面做懸浮吊頂和極簡無主燈設計,讓整個空間渾然天成。 為陽光而設的沙發,在冬日晨光中配著咖啡或茶,盡情感受生活的詩意。雙陽臺的大片玻璃窗賦予了居住者俯瞰外部景觀的絕佳視野,同時也把更多的自然光帶入客廳。深灰色的電動窗簾可根據需要進行開合,有效保護主人隱私。 在長達7米的電視背景設計上,為了不讓柜體占據整個空間使視覺過滿,設計師做了高矮錯落的開放式裝飾格和電視機隱藏式處理,柜門一開一合,實現場景的自由轉換。沙發背景則結合鏤空不銹鋼書架設計,讓視線延伸,通透感十足。 Baxter意式極簡水波紋玻璃面配現代大理石邊底的茶幾擁有獨特而出眾的外觀,搭配素色線形紋理尼龍材質的地毯,層次細膩,質感柔和。 空間不是恒定,而是可流動的。在空間形態上,我們賦予其更多維度的可能性。書吧臺是用鏤空結合屏風的設計演化,與客廳聯展的開放式空間,還置入了多功能娛樂室,游戲桌、品茶臺,在閑暇時光里,可以約上三五好友來幾圈中國國粹,或是一同感受茶道中的禪意。豐富配套,滿足休閑生活的所有想象。 餐廳 - DINING ROOM 餐廳配置2.2米超長餐桌和2米大吧臺構成T型組合,容納多人聚餐不在話下。頂部采用雙空調系統,空調出風方式是下出側回,避免了出風口直對燈槽,智能風口處理非常人性化,冬天制暖也更優秀。另外設計師額外添加了長條狀黑色不銹鋼造型設計,讓空間告別單調。 吧臺使用黑色柔光巖板打造,臺面及側面一體,黑色石槽搭配黑色龍頭,統一的黑調材質塑造滿滿沉靜的高級感。 餐廳還配備了整面的西廚區,白色巖板臺面能夠更便利地處理美食。西廚柜整合了多種功能,玻璃柜敞開格一應俱全,供擺放酒水及各種精美餐具,左側暗藏嵌入式冰箱和儲藏室的門。 將冰箱和房門做整體處理后的西廚面變得更為統一和大氣,而白色巖板與黑色柜門的視覺對比也讓區域質感更加突出。 廚房 - KITCHEN 擴容后的廚房尺寸與餐廳適配,擁有3.3x2米的活動空間。依然是黑色的櫥柜,頂面用大板集成吊頂搭配線性燈,讓空間呈現優雅純粹的設計感。家電上嵌入蒸烤箱、洗碗機,再加深灰雙門大冰箱和觸感油煙機,充分滿足中西式各類烹飪需求。 臥室 - BEDROOM 主臥放置了2x2.2米雙人床,活動空間依然是非常的闊綽。床背景使用原木色護墻,克制有序的幾何線條勾勒出干凈、舒適的氛圍。床邊就是燈光智能控制開關,在不同時間段可以用不同的燈光組合來展露幽微的情緒變化。
上一篇:層高拉伸大法,快進來學!





















免費
免費申請戶型規劃
專屬設計師免費1對1全程服務
已經有3781人申請
24小時免費咨詢電話
400-8800-618
你家預算
108080元